1 LAND
- 1335 m²
- 422 m² total living area
- Project A: 2 half-cabins and 1 full cabin
2 DEMI - CHALETS
For each:
- Solid post-and-beam structure
- Old-wood siding
- 4-bedroom, 105 m² over 3 floors
- 3 bedrooms / 3 bathrooms
- Drywall finish and steam-brushed paneling
- Heat pump heating - Underfloor heating on all three floors
- Garage (heated)
- Balconies/terrace and garden of approximately 300 m², with trees on the street side
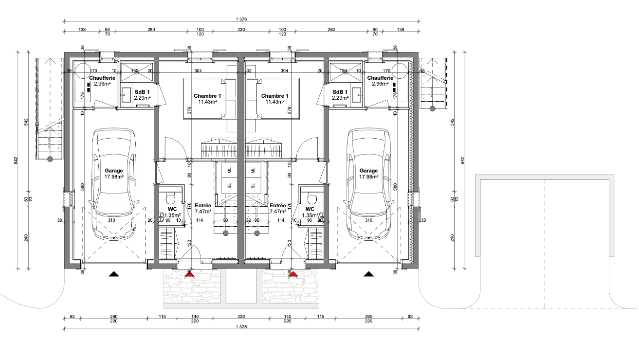
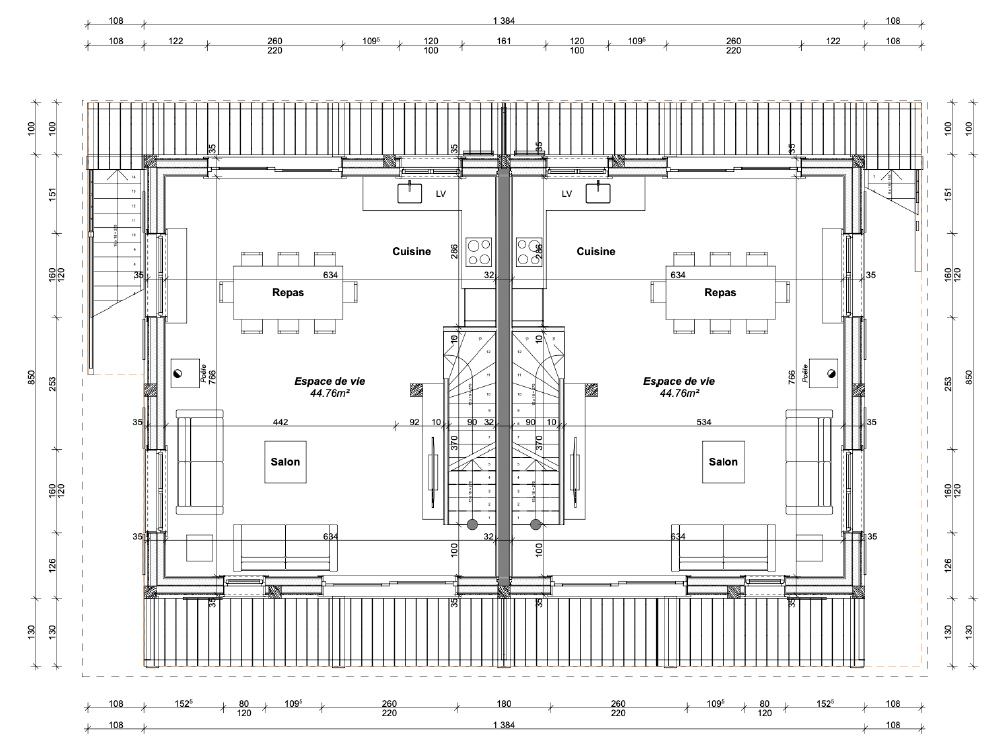
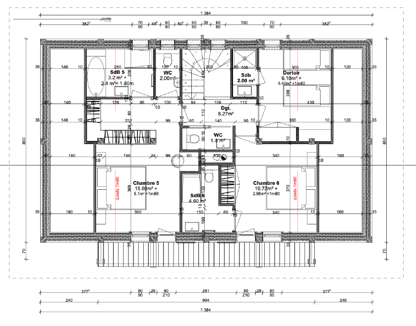
Floor plan of the demi-chalet
- 2 semi-detached homes
- 3 levels
- Ground floor with a garage/storage room (21 sq. m. interior)
- First floor and attic
- Each semi-detached home has 104 sq. m. of net living space
- Entire chalet with 200 sq m of living space
- 3 levels
- Garage, balconies, and a 400 sq m garden
- 6 bedrooms / 5 bathrooms
The benefits of our program
- High-quality solid wood from the Jura region
- Complete customization of the layout and finishes
- Self-funded project with a fast implementation timeline (8 months)
Each half-chalet features a private garden on the ground floor, a wooden deck, two balconies, and an outdoor parking space.

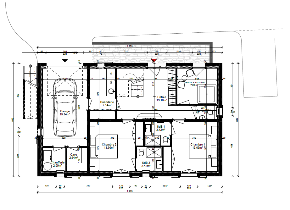
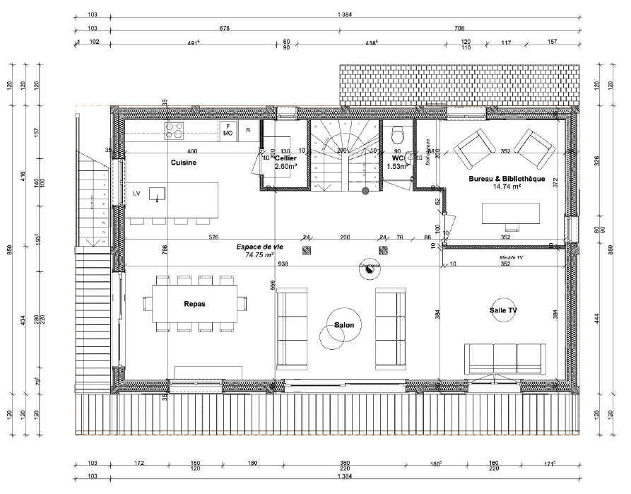
Plans Chalet A
- Basement


- Ground floor

- Roof space


Plans Chalet B
- Basement


- Ground floor

- Floor


Calendar
- Completion of earthwork Decembrie 2024
- Finishing work on Chalet A February 2025
- Finishing work on Chalet B April 2025
- Chalet A: weatherproof / draft-proof May 2025
- Chalet B: weatherproof / draft-proof June 2025
- Interior Finishes for Chalet A October 2025
- Completion of Chalet A March 2026
- Completion of Chalet B May 2026










