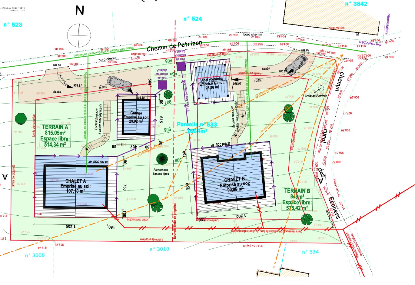
1 TERRAIN
- 1664 m²
- 315 m² surface totale habitable
- Projet 2 chalets A et B
CHALETS
Pour chacun:
- Structure poteaux-poutres massif
- Bardage vieux-bois
- 150m² et 156 m² sur 3 niveaux
- 3 chambres / 3 salles de bain
- Intérieur totalement personnalisable
- Chauffage pompe à Chaleur - Plancher chauffant
- Garage
- Balcons/terrasse- jardin de 500 m² env., arboré côté route
Photos du produit fini
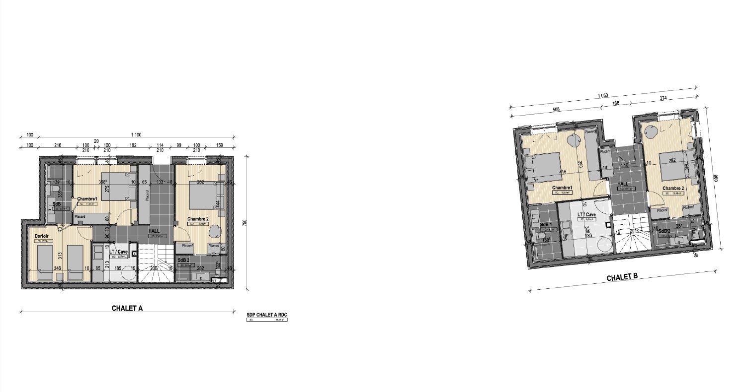
Apartment Plans
- 3 niveaux
- Rez-de-chaussée 2 chambres et un dortoir
- Un étage et les combles
- 156 m2 nets habitables
- 3 niveaux
- Garage, balcons et 500 m² de jardin
- Chalet entier de 150 m² habitables
Vos avantages avec notre programme
- Bois de qualité, massif, origine Jura
- Personnalisation totale de l’aménagement et des finitions
- Projet auto-financé avec planning d’exécution rapide (8 mois)
Plan de masse

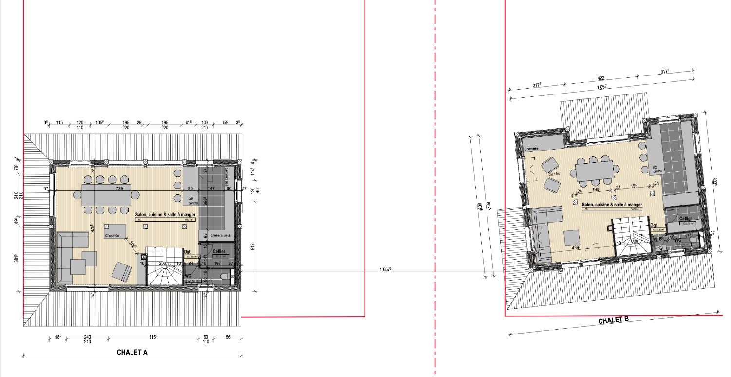
Façades A et B


- Rez de chaussée

- Rez-de-jardin



- Combles










